VENTA!!! Departamento Torre 5 Amb. con Dep. Servicio y Amenities. Belgrano, Caba. USD 795.000 - EN VENTA
Descripción
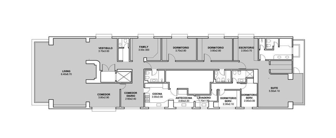
Si estás buscando algo en particular contactate al whatsapp 1131747014. Departamento en excelente estado ubicado en edificio en Torre, todo externo y muy luminoso. Se encuentra a metros de Paseo del Angel y Barrancas de Belgrano, lugares estratégicos del barrio de Belgrano. Cerca de todo!!! Se ingresa al mismo por Palier Privado. Cuenta con doble circulación. Gran Living y Estar con balcón incorporado. Comedor con salida al Balcón. Toilette de Recepción. Cocina con Comedor Diario. Lavadero independiente y Dependencia de Servicio con su Baño. Segunda habitación de servicio hoy transformada en Escritorio. Master Suite con dos vestidores. Dos dormitorios amplios con ventanales al exterior y con sus respectivos placares. Dos Baños Completos. Family Room. Todo el departamento es externo y muy luminoso. Tiene muchos placares y lugar de guardado. Originalmente piso de 5 dormitorios, hoy son 3 dormitorios con dependencia. Aire Acondicionado en todos los ambientes. 2 Cocheras Fijas Cubiertas en 1º subsuelo. Baulera individual. Encargado con vivienda en edificio. Grupo Electrógeno. La Torre cuenta con AMENITIES y SEGURIDAD 24 HS. Pileta - Parrilla - SUM (en último piso). Contactanos y te lo mostramos!
| Detalles | |
|---|---|
| Código | KP460575 |
| Categoría | Departamentos |
| Estado | Activa |
| Ubicación | Arcos 1900 |
| Barrio | Belgrano |
| Localidad | Capital Federal, Capital Federal |
| Tipo de operación | En venta |
| Ambientes | 5 |
| Dormitorios | 3 |
| Baños | 3 |
| Baños de servicio | 1 |
| Estacionamientos | 2 |
| Piso | 10 |
| Pisos en el edificio | 15 |
| Mts totales (mt²) | 284.00 |
| Mts cubiertos (mt²) | 276 |
| Año de construcción | 1975 |
| Expensas | ars 1500000.00 |